Таунхаус на продажу в г. Одесса | АН «Авалон»

Паустовского улица, Лески ID 70579

130 000 $

Обзор

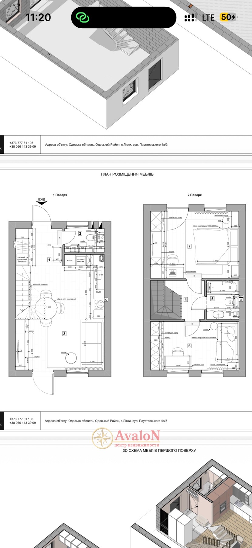
  • 803130 м²Общая площадь
  • 1 соткаПлоащадь участка
  • 3Комнаты
  • 2Этаж
Описание

Продається таунхаус у Лісках, 80 м², з якісним дизайнерським ремонтом. Робили для себе. Планування: кухня-вітальня, 2 кімнати, ванна, туалет. Газове опалення. Канализация: септик. Усі меблі виготовлені на замовлення. Стільниці з натурального каменю, якісний керамограніт, пофарбовані стіни, стеля з гіпсокартону (не натяжна). Продається з меблями та технікою. Дизайн-проєкт передаємо. Є задній дворик, розпашні ворота, садовий стіл і диван.

Детали

  • Электричество:
  • Вода:
  • Газ:
  • Населенный пункт:Лески
  • Улица:Паустовского улица
  • Материал:Пеноблоки
  • Тип дома:Коттедж
 Контакты
РиелторХромова Елена Владимировна